Gelegen in de charmante plaats Los Alcázares, biedt deze exclusieve collectie van vijf rijtjeshuizen een unieke kans om te genieten van een bevoorrechte omgeving. Los Alcázares staat bekend om zijn nabijheid tot de zee, op slechts 3 km afstand, waardoor u kunt genieten van de zeebries en ontspannen wandelingen langs de kust. Bovendien ligt de dichtstbijzijnde luchthaven op 45 km afstand, wat toegang tot nationale en internationale verbindingen vergemakkelijkt. Deze rijtjeshuizen zijn ontworpen met comfort en functionaliteit in gedachten, en bieden een moderne en comfortabele levensstijl op een benijdenswaardige locatie.
BUITENRUIMTES
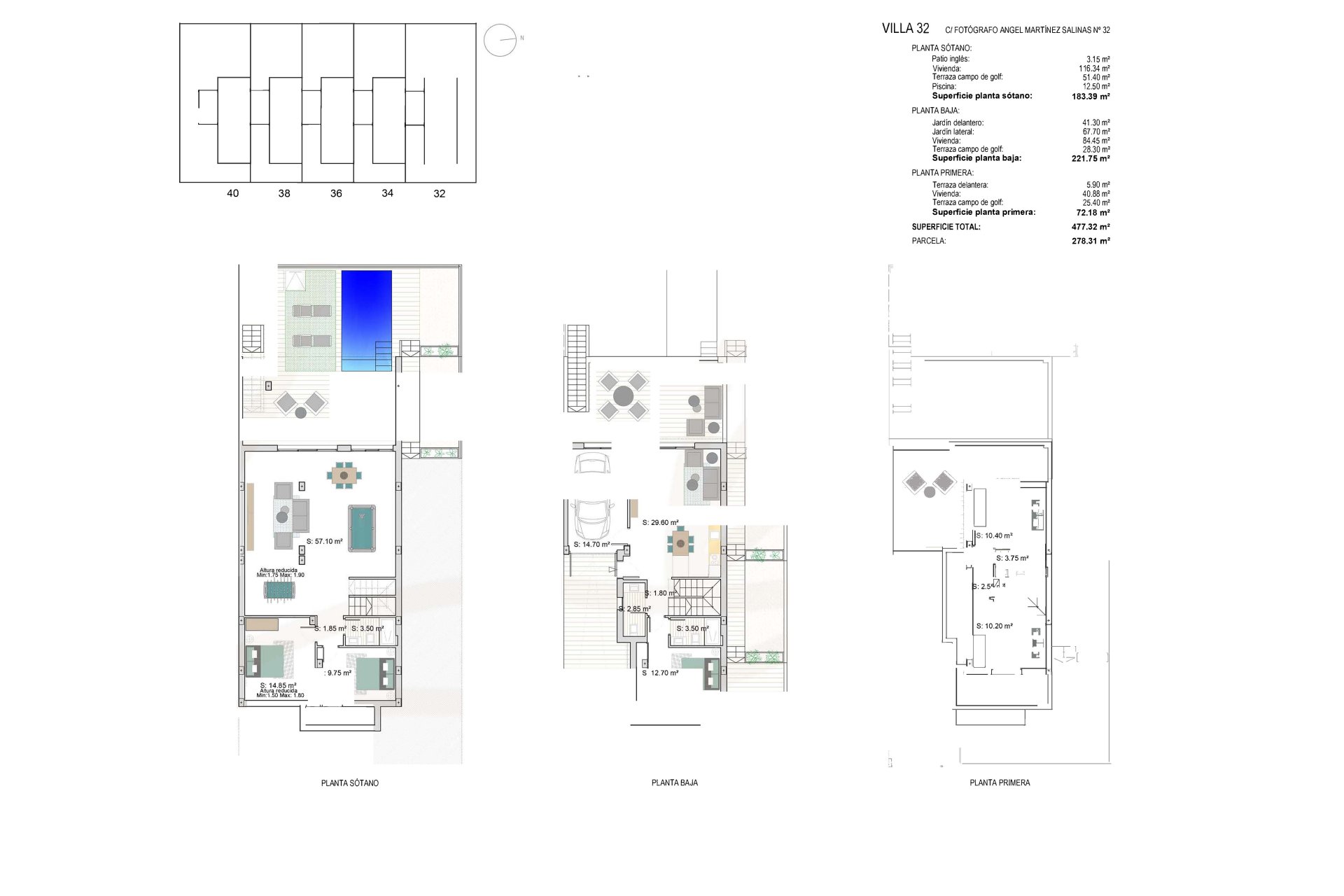
De buitenruimtes van deze rijtjeshuizen in Los Alcázares zijn ontworpen om optimaal te genieten van het mediterrane klimaat. Elke woning heeft een privé tuin, ideaal om een persoonlijke groene ruimte te creëren waar u kunt ontspannen of genieten van buitenactiviteiten. Daarnaast hebben ze een terras dat de perfecte plek wordt om te genieten van maaltijden in de buitenlucht of gewoon te ontspannen aan het einde van de dag. Voor degenen die willen afkoelen tijdens de warme zomerdagen, heeft elk rijtjeshuis een privézwembad, wat een persoonlijke oase van rust en plezier biedt. Het exterieurontwerp wordt gecompleteerd door de toevoeging van elektrische rolluiken, die niet alleen comfort toevoegen maar ook een vleugje moderniteit en veiligheid.
BINNENRUIMTES
Het interieur van deze rijtjeshuizen in Los Alcázares is ontworpen om maximaal comfort en functionaliteit te bieden. Elke woning beschikt over drie slaapkamers en drie badkamers, wat een ruime en goed ingedeelde ruimte biedt voor het hele gezin. De porseleinen tegelvloeren geven een vleugje elegantie en zijn gemakkelijk te onderhouden. De keuken is uitgerust met moderne apparatuur, wat het dagelijks leven vergemakkelijkt en het mogelijk maakt om thuis van koken te genieten. Bovendien is elk rijtjeshuis voorzien van airconditioning, wat het hele jaar door een aangename sfeer garandeert. De ingebouwde kasten bieden efficiënte en georganiseerde opslag, terwijl de privé garage comfort en veiligheid biedt voor het parkeren van voertuigen.