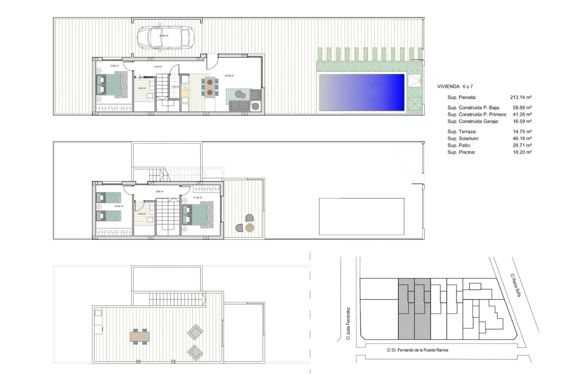
Gelegen in de charmante plaats Los Alcázares, biedt deze exclusieve collectie van 9 vrijstaande woningen een bevoorrechte omgeving voor degenen die een huis aan de kust zoeken. Met een afstand van slechts 1 km tot de zee zijn deze eigendommen ideaal om te genieten van de zeebries en de mediterrane levensstijl. Bovendien ligt de luchthaven op slechts 30 km afstand, wat de toegang tot internationale verbindingen vergemakkelijkt. De woningen zijn ontworpen om comfort en functionaliteit te bieden, met een indeling die 3 slaapkamers en 2 badkamers omvat, aangepast aan de behoeften van gezinnen en koppels die op zoek zijn naar een gezellige en moderne ruimte.
BUITENRUIMTES
De buitenruimtes van deze vrijstaande woningen zijn ontworpen om optimaal te genieten van het zonnige klimaat van Los Alcázares. Elke woning heeft een privé tuin, perfect om een persoonlijke buitenoase te creëren. Het terras biedt extra ruimte om te ontspannen of gasten te vermaken, terwijl het solarium ideaal is om in alle privacy te zonnebaden. Bovendien beschikt elke woning over een privézwembad, wat een verfrissende plek biedt om te genieten tijdens de warme zomerdagen. De nabijheid van de zee biedt panoramische uitzichten en snelle toegang tot de lokale stranden.
BINNENRUIMTES
Het interieur van deze vrijstaande woningen in Los Alcázares is ontworpen met oog voor detail en functionaliteit. De porseleinen tegelvloeren geven een vleugje elegantie en zijn gemakkelijk te onderhouden. De keuken is uitgerust met moderne apparatuur, wat het dagelijks leven vergemakkelijkt. De ingebouwde kasten in de slaapkamers bieden veel opbergruimte, waardoor orde en organisatie behouden blijven. Bovendien zijn de woningen voorzien van een pre-installatie voor airconditioning, wat comfort het hele jaar door garandeert. De indeling van 3 slaapkamers en 2 badkamers is ontworpen om een gezellige en praktische ruimte voor het hele gezin te bieden.